Lijfrente vastgoed
Dorp-West 128/301
9080
Lochristi
België
E.info@lijfrentevastgoed.be
Bouwgrond te koop op lijfrente
Bovenhoek 3, 9660 Brakel
Ref: VK06032026C
Unieke investeringskans: bouwgrond te koop op lijfrente in Brakel
Dit type aanbod is bijzonder zeldzaam, aangezien bouwgronden slechts uitzonderlijk op lijfrente op de markt komen. Hierdoor gaat het om een exclusieve opportuniteit voor wie wil investeren in vastgoed op lange termijn.
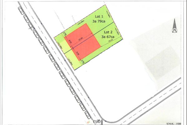
Het betreft lot 2, een bouwgrond van 367 m² gelegen op een landelijke locatie. Er bestaat bovendien de mogelijkheid om het aanpalende lot eveneens aan te kopen, wat deze aanbieding extra interessant maakt voor investeerders of voor ouders die vandaag al willen investeren voor hun kinderen of kleinkinderen.
Dit aanbod combineert een lage instapprijs en het voordeel dat er geen zorgen zijn rond onderhoud of onverwachte kosten zoals bij een woning. Hierdoor vormt dit een aantrekkelijke en toekomstgerichte investering in vastgoed.
Interesse in deze unieke opportuniteit? Een vrijblijvende afspraak kan via info@lijfrentevastgoed.be of 0473 25 75 93.
- Boeket: 5.000 euro
- Maandelijkse lijfrente: € 745
- Maximale duur: 15 jaar
- Leeftijd verkoper: 70 jaar (vrouw) en 75 jaar (man)
- Vruchtgebruik: levenslang behouden door verkopers
Dit type aanbod is bijzonder zeldzaam, aangezien bouwgronden slechts uitzonderlijk op lijfrente op de markt komen. Hierdoor gaat het om een exclusieve opportuniteit voor wie wil investeren in vastgoed op lange termijn.
Het betreft lot 2, een bouwgrond van 367 m² gelegen op een landelijke locatie. Er bestaat bovendien de mogelijkheid om het aanpalende lot eveneens aan te kopen, wat deze aanbieding extra interessant maakt voor investeerders of voor ouders die vandaag al willen investeren voor hun kinderen of kleinkinderen.
Dit aanbod combineert een lage instapprijs en het voordeel dat er geen zorgen zijn rond onderhoud of onverwachte kosten zoals bij een woning. Hierdoor vormt dit een aantrekkelijke en toekomstgerichte investering in vastgoed.
Interesse in deze unieke opportuniteit? Een vrijblijvende afspraak kan via info@lijfrentevastgoed.be of 0473 25 75 93.
| Naam |
Gilles Geirregat
|
| GSM |
| Totale opp. grond |
367 m²
|
| Algemene staat |
Normaal
|
| Bemeubeld |
Neen
|
| Huisdieren toegestaan |
Ja
|
| Oriëntatie tuin |
Oost
|
| Elektriciteitscertificaat |
Neen
|
| Stedenbouwkundige bestemming |
Woongebied met landelijk karakter
|
| Dagvaarding voor stedenbouwkundige overtreding |
Geen rechterlijke herstelmaatregel of bestuurlijke maatregel opgelegd
|
| Bouwvergunning |
Niet ingegeven
|
| Verkavelingsvergunning |
Ja
|
| Voorkooprecht |
Neen
|
| As-built attest |
Neen
|
| Beschermd erfgoed |
Neen
|
| Renovatieplicht |
Neen
|
Laten we de kosten berekenen
false
1.5%
20 jaar
EUR/maand